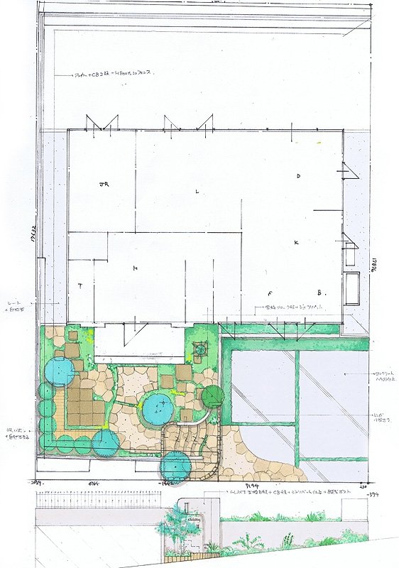
Drawing (P6):the landscape design company based in Yokohama - FUCHISO Inc.
WORKS
DRAWING
COMPANY
B2B
CONTACT
JP
EN
HOME
Drawing
Drawing
NO. 904
No.904
NO. 903
No.903
NO. 902
No.902
NO. 901
No.901
<
3
4
5
6