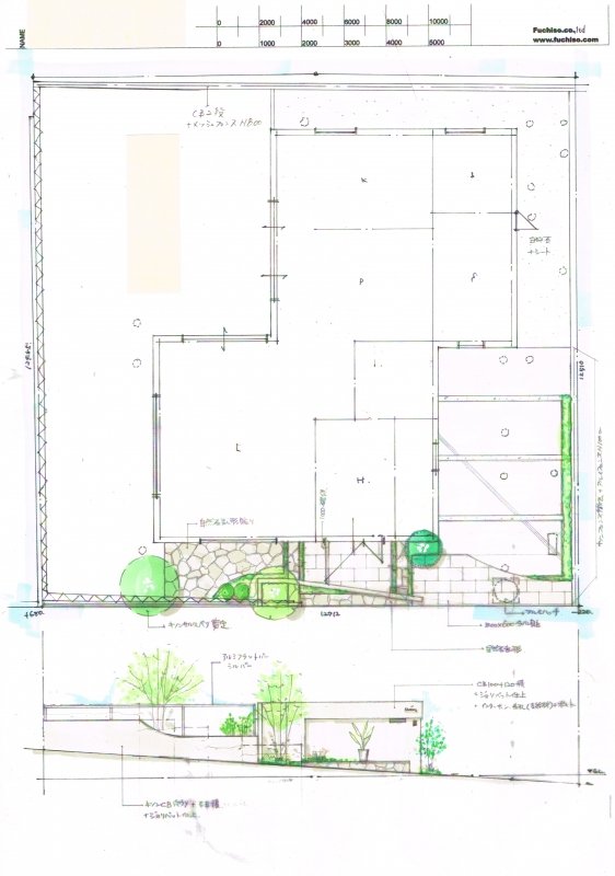
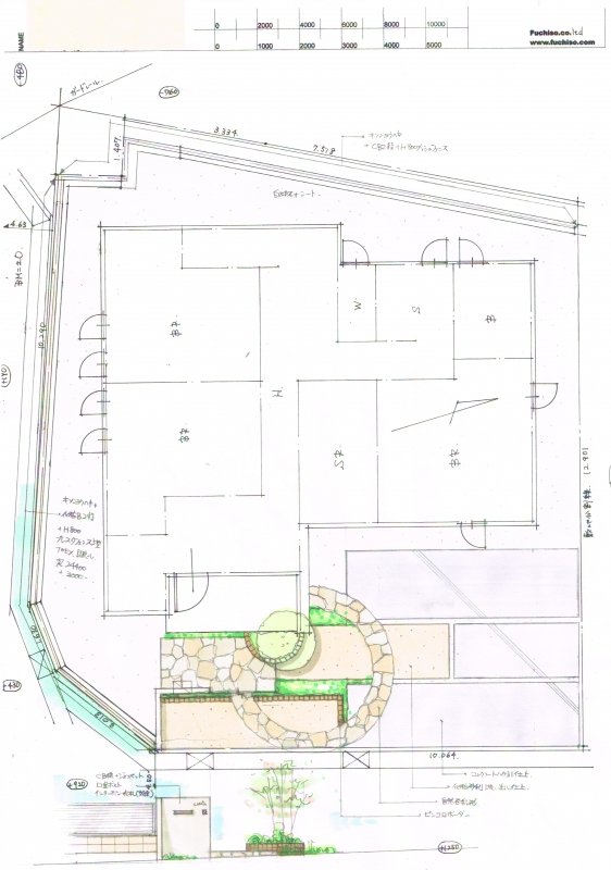
図面 NO. 1041 駐車場デザイン NO. 1040 オープンテラスハードウッドのパーゴラ NO. 1039 半円外壁と植栽 NO. 1038 道路から目隠し 玄関とお庭 NO. 1037 外構 和モダン NO. 1035 タイルデッキと芝生スペース、用途で使い分け NO. 1033 ナチュラル和モダン NO. 1032 クリニック中庭 庭園 NO. 1028 外構曲線と自然石の組み合わせ NO. 1027 モダン外構豊富なデザイン NO. 1025 外構アジアンリゾートプラン NO. 1023 和モダン外構 <891011121314>
タグ一覧(人気順) ゴロタ石 ライトアップ ロックガーデン セラレバンテ 狭小地 アウトドアリビング ガーデンキッチン ドライガーデン 駐車場 グランドカバー LEDバーライト タイルデッキ ウエストリンギア デザイナーズレール 浮き階段 目隠しフェンス スロープ 露天風呂 花壇 オスポール ウォーターガーデン アプローチ ドラセナ 花ブロック タグをもっと見る